Parlak Bir Yenileme Karanlık Bir Brooklyn Brownstone’u Aydınlatıyor Stuyvesant semtinde yer alan bu alçak kumtaşı ev, genç bir ailenin hayallerini gerçeğe dönüştürme hikayesidir. Satın alındığında, mülk satıcı tarafından çekidüzen verilmişti, ancak yeni ev sahipleri, 1.930 metrekarelik konutun her iki katına da daha fazla ışık getirmek ve bahçe seviyesindeki düzeni ihtiyaçlarına daha iyi uyacak şekilde yenilemek istediler. Bu yenileme sürecinde, vonDalwig Architecture’dan Philipp ve Kit von Dalwig ile çalışma fırsatı buldular.
Evin salon katı oturma odası, vonDalwig Architecture tarafından orijinal dönem detaylarını koruyarak yeniden canlandırıldı. Yeni geniş plank hafif tasarımlı ahşap döşeme ve Clé’s Arc karoları, dekoratif şöminenin iç kısmına grafik bir öğe ekleyerek mekanı modernleştirdi. Matter Made Arch tek katlı avize, oturma odasındaki yüksek tavandan sarkıyor ve 606 Üniversal Raf Sistemi Visoe’den ek depolama alanı sağlıyor.
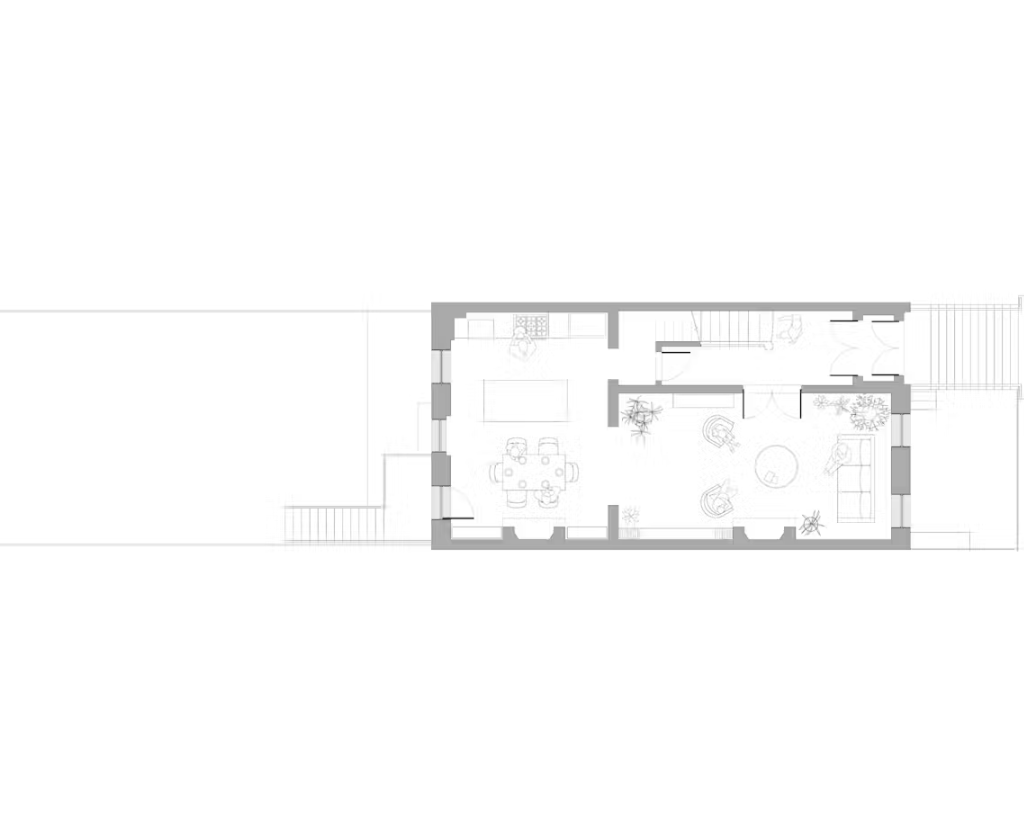
Evin geleneksel bir kat planı vardı: önde oturma odası olan bir salon zemin girişi ve arkada açık plan yemek odası/mutfak. Yatak odaları alt katta bahçe seviyesindeydi ve ayrıca bir kiler ve bir arka bahçe alanı vardı. Ancak, tüm evin doğal ışığa erişimi yoktu. Bu durumu düzeltmek için, yeni kemerli pencere, açık plan mutfak ve yemek alanına ışık ve manzara getiriyor. Jula Jessen tarafından Schneid’in Junit koleksiyonu için tasarlanan beş renkli, geometrik pandantif yemek masasının üzerinde asılı duruyor.
Mutfak, minimalist bir tasarıma sahip. Richlite tezgahlar ve mat beyaz Reform Basis cepheli IKEA PAX dolapları, mutfakta hem işlevsellik hem de estetik sağlıyor. Bu alanın düzenlemesi, evin genel aydınlatma ve düzenleme ihtiyaçlarına yönelik çözümler sunuyor.
Firmanın ilk görevi, alt kattaki dublekse daha fazla ışık getirmekti. Bahçe katını yeniden düzenlediler, ana yatak odasını arkaya taşıdılar ve bir dizi banyonun arkasında havalı bir koridor oluşturdular. Bu koridor, bahçe seviyesindeki iki yatak odasını birbirine bağlarken ek dolap alanı sağlar ve tampon bölge görevi görür.
Bütçeyi aşmamak için, IKEA mutfağı, Reform’dan tasarım cepheler ve tezgahlarla yükseltildi. Reform’un gardırop dolapları, şöminenin her iki tarafında durarak depolamayı en üst düzeye çıkarır.
Ana yatak odasında, iki küçük pencere vardı. Bu pencereleri yeniden işleyerek, güvertenin altına bakan bir pencereyi kaldırdılar ve arka bahçeye bakan pencereyi büyüterek alanı çok daha iyi bir görüşe odakladılar. Salon seviyesinde, Danimarkalı tasarım markası Reform’dan yepyeni bir mutfak ve uzun gardırop dolapları yerleştirdiler. Yenilenen alan, maça temiz, minimalist bir görünüme ve organizasyona sahiptir.
Bahçe seviyesindeki ebeveyn yatak odasındaki bir pencere büyütülerek odaya giren doğal ışık miktarı artırıldı. Gömme dolaplar, duvarlara uyması için mat beyaz renkte özel cephelere sahip IKEA PAX bileşenlerine sahiptir.
VonDalwig Architecture, iki tavandan tabana pencere arasına yeni bir kemerli pencere oydu ve bunlar, sanki her zaman oradaymış gibi görünmesi için dönem ayrıntılarını eşleştirdi. Bu pencere, dış mekanla daha büyük bir bağlantı sağlar ve evin her yerine ek doğal ışık akışı sağlar.
Yeni kemerli pencere, mutfağı ve tüm zemini açarak odaya daha fazla derinlik ve perspektif kazandırıyor. Bu özellik, tadilatın en sevilen parçası olarak kabul ediliyor. Bu yenilikler, evin hem estetik hem de işlevsel açıdan daha yaşanabilir hale gelmesini sağladı. Bu projede, modern tasarım ve geleneksel mimari unsurların nasıl başarılı bir şekilde birleştirilebileceği gösteriliyor. Bu yenileme, genç bir ailenin hayallerini gerçeğe dönüştürme hikayesini anlatıyor ve aynı zamanda, bir evin nasıl kişiselleştirilebileceği ve yaşam kalitesini artırabileceği konusunda ilham veriyor.












VonDalwig Architecture, iki tavandan tabana pencere arasına yeni bir kemerli pencere oydu ve bunlar, sanki her zaman oradaymış gibi görünmesi için dönem ayrıntılarını eşleştirdi. Bu pencere, dış mekanla daha büyük bir bağlantı sağlar ve evin her yerine ek doğal ışık akışı sağlar. Yeni kemerli pencere, mutfağı ve tüm zemini açarak odaya daha fazla derinlik ve perspektif kazandırıyor. Bu özellik, tadilatın en sevilen parçası olarak kabul ediliyor. Bu yenilikler, evin hem estetik hem de işlevsel açıdan daha yaşanabilir hale gelmesini sağladı. Bu projede, modern tasarım ve geleneksel mimari unsurların nasıl başarılı bir şekilde birleştirilebileceği gösteriliyor. Bu yenileme, genç bir ailenin hayallerini gerçeğe dönüştürme hikayesini anlatıyor ve aynı zamanda, bir evin nasıl kişiselleştirilebileceği ve yaşam kalitesini artırabileceği konusunda ilham veriyor.